LOT VENDU - Vinzel - Les Terrasses du Château - Lot 4 - 5.5 pièces - Duplex

LOT VENDU - Vinzel - Les Terrasses du Château - Lot 4 - 5.5 pièces - Duplex

Pièces: 5.5
Surface: Vente : 142m2 // Utile : 162m2
Budget: dès 1'540'000 CHF
Date de livraison: 05/01/2022
Information

Niché au coeur du vignoble de la Côte, Vinzel reste l’un des rares havre de paix idéalement situé entre Genève et Lausanne. La vue sur le Lac et les Alpes est extraordinaire.

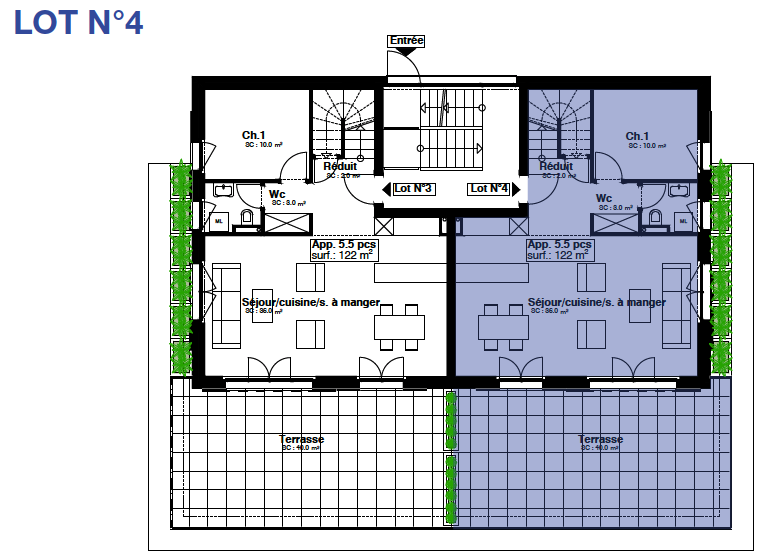
L'appartment proposé est un Duplex ouest de 5.5 pièces.

Appartement de 142 m2 de surface PPE,comprenant 122 m2 nets, composé au premier étage de 1 chambre à coucher,1 WC séparé, cuisine, salle à manger, séjour et terrasse de 40 m2. Cet appartement dispose d'un jardin privatif sur l'arrière de la parcelle.

Orientation sud et sud-ouest.

A moins de 5 minutes de l’autoroute et de toutes les commodités qu’offre le village de Vich, la situation du village de Vinzel est idéale.

01

Demande d'informations

Ce formulaire est protégé par Google reCAPTCHA.